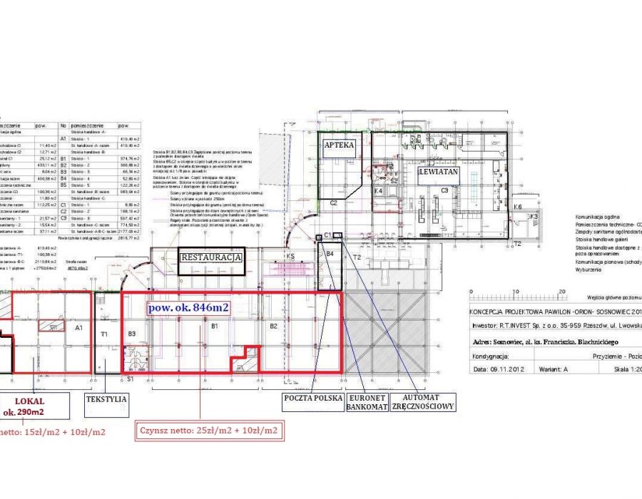
Wynajmę lokal 846m2 na parterze w Sosnowcu (CH ORION)
29 610 zł 35.00 zł/m2Do wynajęcia lokal w stanie deweloperskim ok. 846m2 do dowolnej aranżacji, usytuowany na parterze budynku położonego w Sosnowcu przy ul. Blachnickiego (dawny ORION) w bezpośrednim sąsiedztwie osiedli mieszkaniowych oraz przy ulicy o dużym natężeniu ruchu. Miejsce dobrze skomunikowane, wyjazd na trasę szybkiego ruchu, w pobliżu przystanki komunikacji miejskiej. Czynsz netto 25zł/m2 plus media. Doskonałe miejsce pod fitness/siłownię, inne... . W lokalu zaplecze socjalne. Stawka czynszu do niewielkiej negocjacji, do czynszu należy doliczyć kwotę opłaty serwisowej w wysokości 10zł/m2 netto (w tym m.in. zużycie wody oraz energii el. na częściach wspólnych, wywóz nieczystości, utrzymanie obiektu, odśnieżanie i inne). W sąsiedztwie oferowanej powierzchni znajdują się: sklep spożywczy, apteka, poczta, gastronomia oraz ubezpieczenia. W obiekcie z powodzeniem funkcjonują również placówki bankowe, odzież męska, damska, RTV AGD, Centrum Chińskie, Studio Figura, Salon Optyczny oraz usługi medyczne, kawiarnia, pizzeria i inne... Przy obiekcie duży i wygodny parking. Więcej informacji udzielę telefonicznie. Zapraszam do obejrzenia proponowanych powierzchni i współpracy. Powyższy opis ma charakter informacyjny i nie stanowi oferty w rozumieniu przepisów Kodeksu Cywilnego.
